友情提示
本站部分转载文章,皆来自互联网,仅供参考及分享,并不用于任何商业用途;版权归原作者所有,如涉及作品内容、版权和其他问题,请与本网联系,我们将在第一时间删除内容!
联系邮箱:1042463605@qq.com
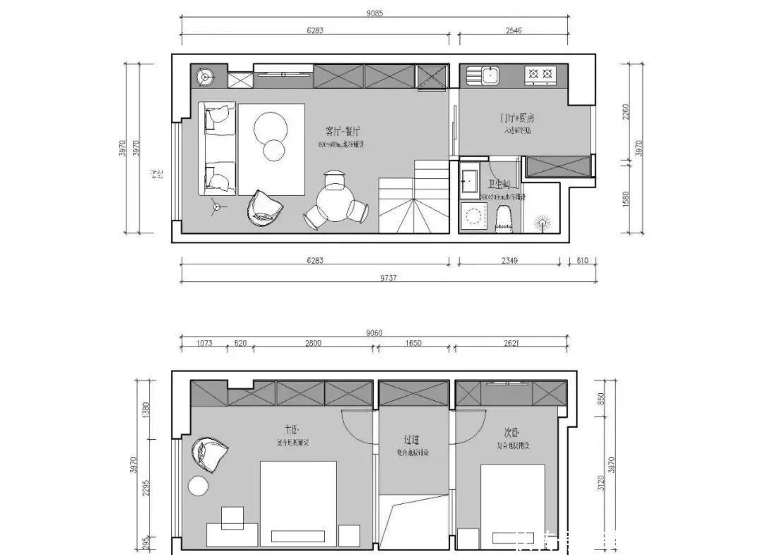
70平北欧复式,绝美客厅首秀,小户型也能清爽雅致
27
0
相关文章
最新文章
标签云
学区房
学位房
大户型
小户型
长沙市
房价保卫战
实木
卧室
客厅
公寓
衣柜
推拉门
卡座
木纹砖
背景墙
衣帽间
户型
北欧风
电视背景墙
厨房
二手房
玄关
优雅
阳台
装修
婆婆
云南
攀岩
书房
莫兰迪
家装
客餐厅
电视墙
简约风
承重墙
长虹
小姐姐
香港
微波炉
浴室柜
餐边柜
集成灶
极简主义
配色
收纳
沙发
木地板
墙面
吊顶
大理石
瓷砖
甲醛
二居室
橱柜
次卧
睡眠质量
xc60
s90
丝绒
电视柜
宜家
家具
装修风格
e20
装修设计
喜剧
生活
国民
家庭剧
命悬一生
欢乐家长群2
童真
轻喜剧
家庭生活
主卧
钝角
三角形
年轻人
空间设计
地洞
电梯
楼板
地下室
地下车库
山景
庭院
理想家
郊区小院
相声
孟鹤堂
郭德纲
收藏品
北京市
太平歌词
春晚舞台
欧豪
硬汉
刑警
刘德华
物管
广州市
空调外机
蚁居
房间
国产剧
北上港
loft
新疆
毛坯房
卫生间
入户门
收纳柜
空间利用率
书桌
水泥
原木风
顶板
海景房
开发商
锅底状
躺椅
椅子
沙发椅
设计师
家居
何猷君
赌王
麻省理工
富二代
一米阳光
重庆
一线城市
爷爷奶奶
家和万事兴
小森林
美好时光
宁静
投影仪
夫妻












