友情提示
本站部分转载文章,皆来自互联网,仅供参考及分享,并不用于任何商业用途;版权归原作者所有,如涉及作品内容、版权和其他问题,请与本网联系,我们将在第一时间删除内容!
联系邮箱:1042463605@qq.com
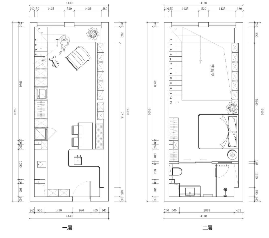
花光所有积蓄,买下35㎡小公寓独居,她说:房子再小也是家!
48
0
相关文章
最新文章
标签云
苏炳添
小姐姐
奥运冠军
黄子韬
中世纪
骑士
华晨宇
张碧晨
老友记
张信哲
萧炎
薰儿
萧薰儿
小医仙
学生时代
乒乓球
孙颖莎
乒乓球队
刘亦菲
奥运
国乒
王菊
我家那闺女
豆得儿
中国队
周雨彤
花儿与少年
单身男女
羽毛球
文咏珊
最佳女配
马丽
百花奖
关晓彤
王智
造型
刘畊宏
威尔史密斯
高铁
电影
陈乔恩
穿搭
不老女神
诛仙
马斯克
奥运会
韩国
汪小菲
流星花园
大s
王鹤润
女排
郎平
路透
张颂文
旗袍
曾舜晞
王玉雯
陈都灵
包包
王楚钦
人品
林志玲
跆拳道
东京奥运
里约奥运
斯坦福
张大大
徐艺洋
宋慧乔
倚天屠龙记
我是女生
俞飞鸿
陈钰琪
周海媚
微软
pdf
microsoft
上海
主播
大长腿
青春美少女
裙子
优雅
卡座
小户型
木纹砖
推拉门
背景墙
公寓
周杰伦
沙发
房车
电音节
陈浩民
逆水寒
手游
gdp
直升机
车载冰箱
普拉多
杭州
















